takeofficeなら掲載物件の仲介手数料は無料です

四谷TNビル

住所 東京都新宿区左門町16
交通 東京メトロ丸ノ内線四谷三丁目」 徒歩4分
JR総武本線信濃町」 徒歩8分
都営新宿線曙橋」 徒歩10分
竣工 2009年02月 構造 鉄骨造+RC
規模 地上11階, 地下1階 耐震基準 新耐震基準
床構造 フリーアクセス 100mm 空調設備 ゾーン別+個別
天井高 2600mm 基準階面積 345坪(1140.5m2)
コンセント容量 50VA/m2 施工会社

最新の募集状況や類似物件については、
こちらにお問い合わせください。

四谷TNビル 外観

外観

  • NOW PRINTING

    エントランス

  • 3F~5F

    3F~5F

  • 1F

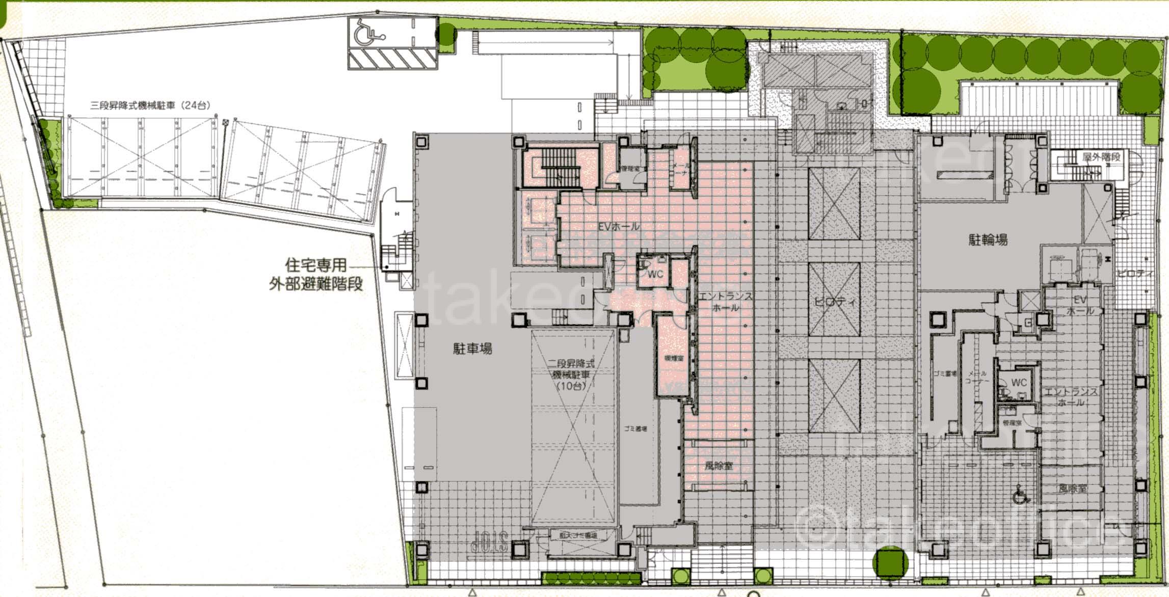
    1F

  • 2F

    2F

建物パンフレット

建物パンフレットは作成時点のものであり、また計画段階のものも含まれる為、実際とは異なる場合がございます。

内見やお見積りなどの各種お問い合わせ

全物件
仲介手数料無料
仲介から
入居工事まで
ワンストップで対応
経験豊富なスタッフが
スピード感をもって
対応

周辺での似た条件の物件

非公開物件 多数あり!

お問い合わせフォーム