takeofficeなら掲載物件の仲介手数料は無料です

四谷セントラルビル

住所 東京都新宿区四谷1-19-2
交通 JR中央線四ツ谷」 徒歩2分
東京メトロ丸ノ内線四ツ谷」 徒歩2分
竣工 1987年 月 構造 RC
規模 地上6階, 地下1階 耐震基準 新耐震基準
床構造 フリーアクセス 47mm 空調設備 個別空調
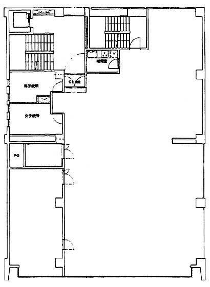
天井高 - 基準階面積 96.5坪(319.01m2)
コンセント容量 - 施工会社

最新の募集状況や類似物件については、
こちらにお問い合わせください。

四谷セントラルビル 外観

外観

内見やお見積りなどの各種お問い合わせ

全物件
仲介手数料無料
仲介から
入居工事まで
ワンストップで対応
経験豊富なスタッフが
スピード感をもって
対応

周辺での似た条件の物件

非公開物件 多数あり!

お問い合わせフォーム