takeofficeなら掲載物件の仲介手数料は無料です

新宿御苑前アネックスビル

住所 東京都新宿区四谷4-34-1
交通 東京メトロ丸ノ内線新宿御苑前」 徒歩3分
東京メトロ丸ノ内線新宿三丁目」 徒歩5分
竣工 1991年10月 構造 SRC
規模 地上8階, 地下1階 耐震基準 新耐震基準
床構造 フリーアクセス 70mm 空調設備 セントラル空調
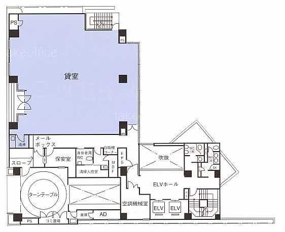
天井高 2530mm 基準階面積 123.8坪(409.26m2)
コンセント容量 - 施工会社

最新の募集状況や類似物件については、
こちらにお問い合わせください。

新宿御苑前アネックスビル 外観

外観

内見やお見積りなどの各種お問い合わせ

全物件
仲介手数料無料
仲介から
入居工事まで
ワンストップで対応
経験豊富なスタッフが
スピード感をもって
対応

周辺での似た条件の物件

非公開物件 多数あり!

お問い合わせフォーム