takeofficeなら掲載物件の仲介手数料は無料です

CSK四谷ビル(旧:DBビル)

住所 東京都新宿区若葉1-4-1
交通 JR中央線四ツ谷」 徒歩6分
東京メトロ丸ノ内線四谷三丁目」 徒歩7分
竣工 2000年12月 構造 鉄骨造
規模 地上6階 耐震基準 新耐震基準
床構造 フリーアクセス 空調設備 個別空調
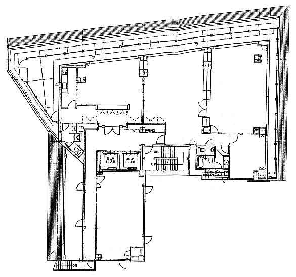
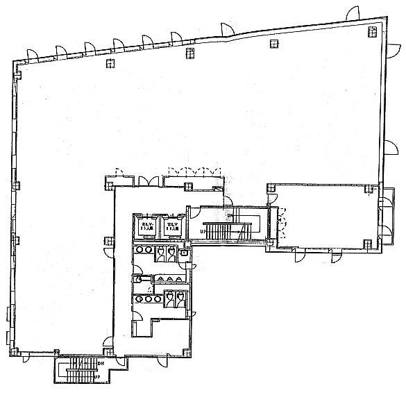
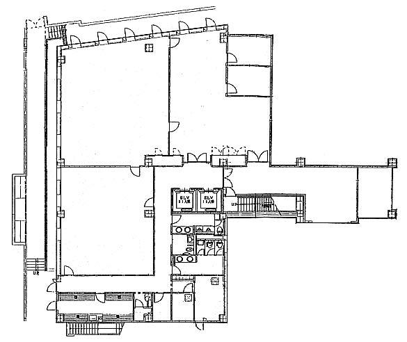
天井高 - 基準階面積 158.9坪(525.29m2)
コンセント容量 30VA/m2 施工会社

最新の募集状況や類似物件については、
こちらにお問い合わせください。

CSK四谷ビル(旧:DBビル) 外観

外観

内見やお見積りなどの各種お問い合わせ

全物件
仲介手数料無料
仲介から
入居工事まで
ワンストップで対応
経験豊富なスタッフが
スピード感をもって
対応

周辺での似た条件の物件

非公開物件 多数あり!

お問い合わせフォーム