takeofficeなら掲載物件の仲介手数料は無料です

AOIビル

住所 東京都新宿区四谷本塩町19
交通 JR中央線四ツ谷」 徒歩9分
都営新宿線曙橋」 徒歩9分
竣工 1991年07月 構造 RC
規模 地上3階 耐震基準 新耐震基準
床構造 フリーアクセス 50mm 空調設備 個別空調
天井高 2450mm 基準階面積 --
コンセント容量 - 施工会社

最新の募集状況や類似物件については、
こちらにお問い合わせください。

AOIビル 外観

外観

  • AOIビル エントランス写真

    エントランス

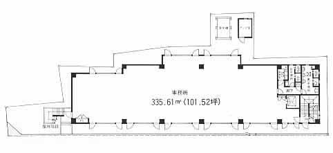
  • 2F

    2F

  • 1F

    1F

  • 3F

    3F

内見やお見積りなどの各種お問い合わせ

全物件
仲介手数料無料
仲介から
入居工事まで
ワンストップで対応
経験豊富なスタッフが
スピード感をもって
対応

周辺での似た条件の物件

非公開物件 多数あり!

お問い合わせフォーム