takeofficeなら掲載物件の仲介手数料は無料です

ラボ東京ビル

住所 東京都新宿区四谷本塩町15-9
交通 JR中央線四ツ谷」 徒歩8分
JR総武本線市ヶ谷」 徒歩9分
東京メトロ丸ノ内線四ツ谷」 徒歩8分
竣工 1973年 構造 SRC
規模 地上9階, 地下1階 耐震基準 耐震診断書有
床構造 フリーアクセス 空調設備 個別空調
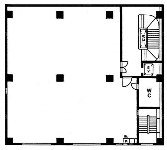
天井高 - 基準階面積 80坪(264.46m2)
コンセント容量 - 施工会社

最新の募集状況や類似物件については、
こちらにお問い合わせください。

ラボ東京ビル 外観

外観

  • NOW PRINTING

    エントランス

  • 基準階

    基準階

内見やお見積りなどの各種お問い合わせ

全物件
仲介手数料無料
仲介から
入居工事まで
ワンストップで対応
経験豊富なスタッフが
スピード感をもって
対応

周辺での似た条件の物件

非公開物件 多数あり!

お問い合わせフォーム