takeofficeなら掲載物件の仲介手数料は無料です

NKビル

住所 東京都新宿区四谷4-27-16
交通 東京メトロ丸ノ内線新宿御苑前」 徒歩5分
都営浅草線宝町」 徒歩3分
東京メトロ銀座線京橋」 徒歩4分
竣工 1989年12月 構造 SRC
規模 地上5階, 地下2階 耐震基準 新耐震基準
床構造 - 空調設備 個別空調
天井高 - 基準階面積 32.01坪(105.82m2)
コンセント容量 - 施工会社

最新の募集状況や類似物件については、
こちらにお問い合わせください。

NKビル 外観

外観

  • NKビル エントランス写真

    エントランス

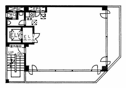
  • 基準階(2~4F)

    基準階(2~4F)

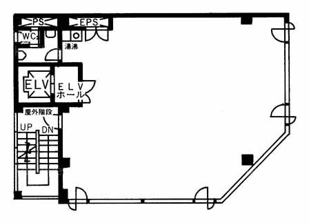
  • 5F

    5F

  • B1F

    B1F

内見やお見積りなどの各種お問い合わせ

全物件
仲介手数料無料
仲介から
入居工事まで
ワンストップで対応
経験豊富なスタッフが
スピード感をもって
対応

周辺での似た条件の物件

非公開物件 多数あり!

お問い合わせフォーム