takeofficeなら掲載物件の仲介手数料は無料です

YKビル

住所 東京都新宿区南元町13-11
交通 JR総武本線信濃町」 徒歩5分
竣工 1988年03月 構造 RC
規模 地上4階, 地下1階 耐震基準 新耐震基準
床構造 フリーアクセス 空調設備 -
天井高 - 基準階面積 --
コンセント容量 - 施工会社

最新の募集状況や類似物件については、
こちらにお問い合わせください。

YKビル 外観

外観

  • NOW PRINTING

    エントランス

  • 2F

    2F

  • 1F

    1F

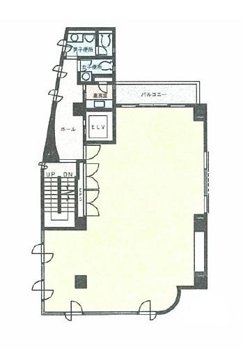
  • 3F

    3F

  • 4F

    4F

内見やお見積りなどの各種お問い合わせ

全物件
仲介手数料無料
仲介から
入居工事まで
ワンストップで対応
経験豊富なスタッフが
スピード感をもって
対応

周辺での似た条件の物件

非公開物件 多数あり!

お問い合わせフォーム