takeofficeなら掲載物件の仲介手数料は無料です

フロンティア四谷

住所 東京都新宿区四谷3-12
交通 東京メトロ丸ノ内線四谷三丁目」 徒歩1分
竣工 1996年11月 構造 SRC+鉄骨造
規模 地上8階 耐震基準 新耐震基準
床構造 フリーアクセス 50mm 空調設備 個別空調
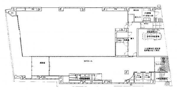
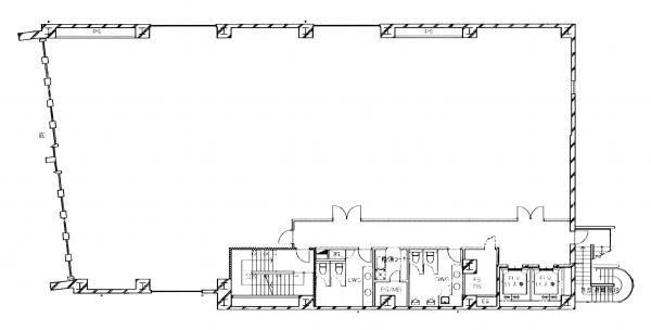
天井高 2650mm 基準階面積 125.37坪(414.45m2)
コンセント容量 - 施工会社

最新の募集状況や類似物件については、
こちらにお問い合わせください。

フロンティア四谷 外観

外観

内見やお見積りなどの各種お問い合わせ

全物件
仲介手数料無料
仲介から
入居工事まで
ワンストップで対応
経験豊富なスタッフが
スピード感をもって
対応

周辺での似た条件の物件

非公開物件 多数あり!

お問い合わせフォーム