takeofficeなら掲載物件の仲介手数料は無料です

Arbor Yotsuya

住所 東京都新宿区信濃町1-2
交通 JR総武本線信濃町」 徒歩7分
東京メトロ丸ノ内線四谷三丁目」 徒歩5分
竣工 2024年01月 構造 鉄骨造
規模 地上12階 耐震基準 新耐震基準
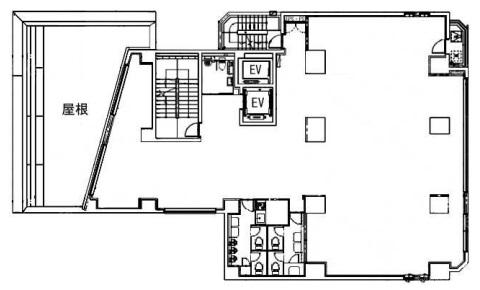
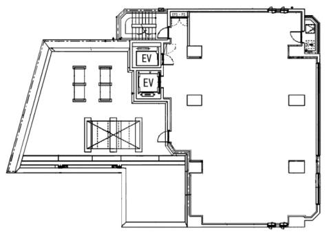
床構造 フリーアクセス 50mm 空調設備 個別空調
天井高 2500mm 基準階面積 106.8坪(353.06m2)
コンセント容量 - 施工会社

最新の募集状況や類似物件については、
こちらにお問い合わせください。

Arbor Yotsuya 外観

外観

内見やお見積りなどの各種お問い合わせ

全物件
仲介手数料無料
仲介から
入居工事まで
ワンストップで対応
経験豊富なスタッフが
スピード感をもって
対応

周辺での似た条件の物件

非公開物件 多数あり!

お問い合わせフォーム