takeofficeなら掲載物件の仲介手数料は無料です

市谷左内坂ビル

住所 東京都新宿区市谷左内町21
交通 JR総武本線市ヶ谷」 徒歩3分
東京メトロ有楽町線市ヶ谷」 徒歩3分
東京メトロ有楽町線麹町」 徒歩11分
竣工 1968年 月 構造 RC
規模 地上6階, 地下1階 耐震基準 旧耐震基準
床構造 フリーアクセス 50mm 空調設備 個別空調
天井高 - 基準階面積 --
コンセント容量 - 施工会社

最新の募集状況や類似物件については、
こちらにお問い合わせください。

NOW PRINTING

外観

  • NOW PRINTING

    エントランス

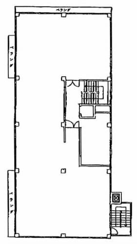
  • 2F

    2F

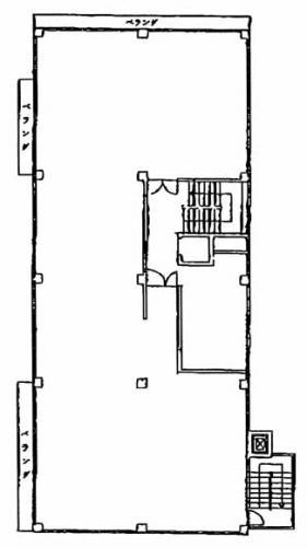
  • 1F

    1F

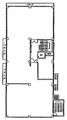
  • 3F

    3F

内見やお見積りなどの各種お問い合わせ

全物件
仲介手数料無料
仲介から
入居工事まで
ワンストップで対応
経験豊富なスタッフが
スピード感をもって
対応

周辺での似た条件の物件

非公開物件 多数あり!

お問い合わせフォーム