takeofficeなら掲載物件の仲介手数料は無料です

千代田ビル

住所 東京都新宿区市谷田町2-37-8
交通 東京メトロ有楽町線市ヶ谷」 徒歩2分
竣工 1992年01月 構造 SRC
規模 地上7階, 地下0階 耐震基準 新耐震基準
床構造 フリーアクセス 100mm 空調設備 個別空調
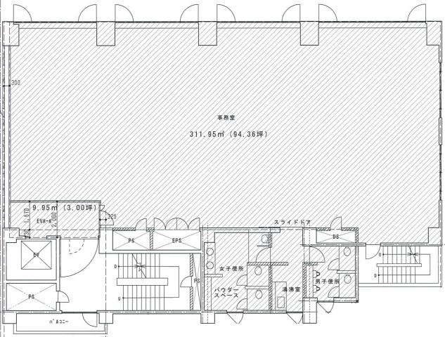
天井高 2500mm 基準階面積 94.36坪(311.93m2)
コンセント容量 - 施工会社

最新の募集状況や類似物件については、
こちらにお問い合わせください。

千代田ビル 外観

外観

内見やお見積りなどの各種お問い合わせ

全物件
仲介手数料無料
仲介から
入居工事まで
ワンストップで対応
経験豊富なスタッフが
スピード感をもって
対応

周辺での似た条件の物件

非公開物件 多数あり!

お問い合わせフォーム