takeofficeなら掲載物件の仲介手数料は無料です

イヌイハイム市谷

住所 東京都新宿区市谷薬王寺町61
交通 都営大江戸線牛込柳町」 徒歩6分
都営新宿線曙橋」 徒歩7分
都営大江戸線若松河田」 徒歩12分
竣工 1983年11月 構造 RC
規模 地上8階, 地下0階 耐震基準 新耐震基準
床構造 - 空調設備 -
天井高 - 基準階面積 --
コンセント容量 - 施工会社

最新の募集状況や類似物件については、
こちらにお問い合わせください。

NOW PRINTING

外観

  • NOW PRINTING

    エントランス

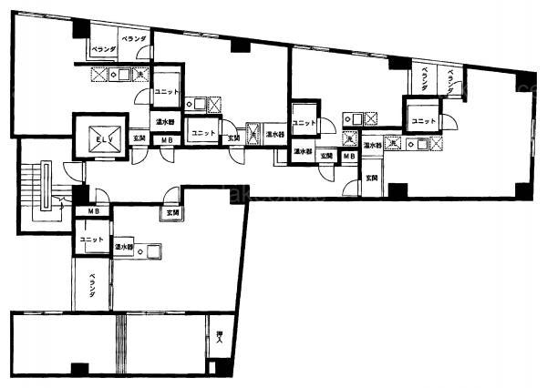
  • 基準階(4~6F)

    基準階(4~6F)

  • 2f

    2f

  • 3F

    3F

内見やお見積りなどの各種お問い合わせ

全物件
仲介手数料無料
仲介から
入居工事まで
ワンストップで対応
経験豊富なスタッフが
スピード感をもって
対応

周辺での似た条件の物件

非公開物件 多数あり!

お問い合わせフォーム