takeofficeなら掲載物件の仲介手数料は無料です

研究社英語センタービル

住所 東京都新宿区神楽坂1-2
交通 JR総武本線飯田橋」 徒歩3分
東京メトロ有楽町線飯田橋」 徒歩3分
都営大江戸線牛込神楽坂」 徒歩9分
竣工 1986年02月 構造 SRC
規模 地上5階, 地下2階 耐震基準 新耐震基準
床構造 フリーアクセス 空調設備 セントラル空調
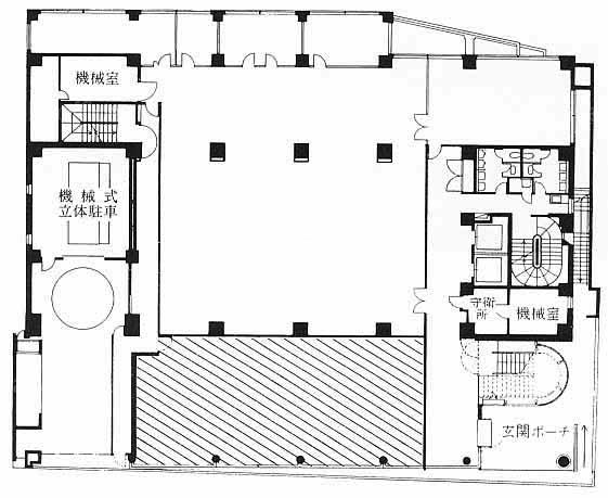
天井高 - 基準階面積 152坪(503m2)
コンセント容量 - 施工会社

最新の募集状況や類似物件については、
こちらにお問い合わせください。

研究社英語センタービル 外観

外観

内見やお見積りなどの各種お問い合わせ

全物件
仲介手数料無料
仲介から
入居工事まで
ワンストップで対応
経験豊富なスタッフが
スピード感をもって
対応

周辺での似た条件の物件

非公開物件 多数あり!

お問い合わせフォーム