takeofficeなら掲載物件の仲介手数料は無料です

第2川島ビル

住所 東京都新宿区揚場町2-17
交通 JR総武本線飯田橋」 徒歩5分
都営大江戸線牛込神楽坂」 徒歩7分
東京メトロ東西線神楽坂」 徒歩10分
竣工 1984年09月 構造 RC
規模 地上7階 耐震基準 新耐震基準
床構造 フリーアクセス 空調設備 個別空調
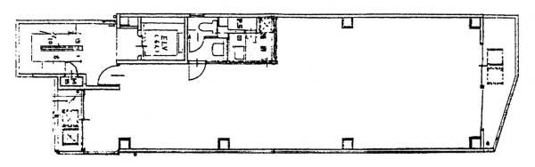
天井高 - 基準階面積 25.48坪(84.23m2)
コンセント容量 - 施工会社

最新の募集状況や類似物件については、
こちらにお問い合わせください。

第2川島ビル 外観

外観

  • 第2川島ビル エントランス写真

    エントランス

  • 4~6F

    4~6F

内見やお見積りなどの各種お問い合わせ

全物件
仲介手数料無料
仲介から
入居工事まで
ワンストップで対応
経験豊富なスタッフが
スピード感をもって
対応

周辺での似た条件の物件

非公開物件 多数あり!

お問い合わせフォーム