takeofficeなら掲載物件の仲介手数料は無料です

ディスコビル

住所 東京都新宿区下宮比町2-12
交通 JR総武本線飯田橋」 徒歩4分
東京メトロ東西線飯田橋」 徒歩4分
竣工 1991年09月 構造 RC
規模 地上4階, 地下2階 耐震基準 新耐震基準
床構造 フリーアクセス 50mm 空調設備 個別空調
天井高 2600mm 基準階面積 162.02坪(535.6m2)
コンセント容量 60VA/m2 施工会社

最新の募集状況や類似物件については、
こちらにお問い合わせください。

ディスコビル 外観

外観

  • ディスコビル エントランス写真

    エントランス

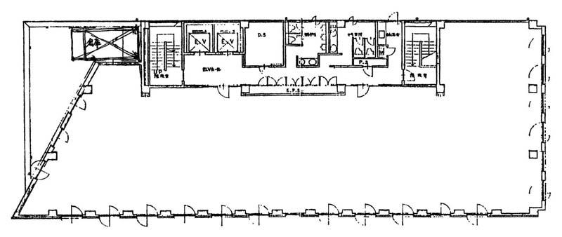
  • 基準階(2~3F)

    基準階(2~3F)

  • 1F

    1F

  • B1F

    B1F

  • 4F

    4F

内見やお見積りなどの各種お問い合わせ

全物件
仲介手数料無料
仲介から
入居工事まで
ワンストップで対応
経験豊富なスタッフが
スピード感をもって
対応

周辺での似た条件の物件

非公開物件 多数あり!

お問い合わせフォーム