takeofficeなら掲載物件の仲介手数料は無料です

87ビルディング岩戸町

住所 東京都新宿区岩戸町4
交通 都営大江戸線牛込神楽坂」 徒歩2分
東京メトロ東西線神楽坂」 徒歩5分
JR総武本線飯田橋」 徒歩8分
竣工 1987年06月 構造 SRC
規模 地上7階, 地下1階 耐震基準 新耐震基準
床構造 - 空調設備 個別空調
天井高 2450mm 基準階面積 --
コンセント容量 40VA/m2 施工会社

最新の募集状況や類似物件については、
こちらにお問い合わせください。

87ビルディング岩戸町 外観

外観

  • 87ビルディング岩戸町 エントランス写真

    エントランス

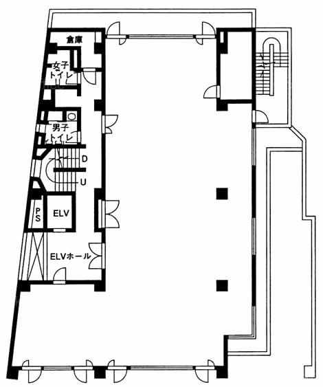
  • 2F

    2F

  • 1F

    1F

  • 3F

    3F

  • 4F

    4F

  • B1F

    B1F

内見やお見積りなどの各種お問い合わせ

全物件
仲介手数料無料
仲介から
入居工事まで
ワンストップで対応
経験豊富なスタッフが
スピード感をもって
対応

周辺での似た条件の物件

非公開物件 多数あり!

お問い合わせフォーム