takeofficeなら掲載物件の仲介手数料は無料です

三田村ビル

住所 東京都新宿区改代町26-1
交通 東京メトロ有楽町線江戸川橋」 徒歩4分
東京メトロ東西線神楽坂」 徒歩8分
都営大江戸線牛込神楽坂」 徒歩10分
竣工 1989年05月 構造 RC
規模 地上3階, 地下1階 耐震基準 新耐震基準
床構造 - 空調設備 -
天井高 - 基準階面積 --
コンセント容量 - 施工会社

最新の募集状況や類似物件については、
こちらにお問い合わせください。

NOW PRINTING

外観

  • NOW PRINTING

    エントランス

  • 1F

    1F

  • 2F

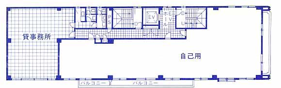
    2F

  • 3F

    3F

内見やお見積りなどの各種お問い合わせ

全物件
仲介手数料無料
仲介から
入居工事まで
ワンストップで対応
経験豊富なスタッフが
スピード感をもって
対応

周辺での似た条件の物件

非公開物件 多数あり!

お問い合わせフォーム