takeofficeなら掲載物件の仲介手数料は無料です

天神町ビル

住所 東京都新宿区天神町3-5
交通 東京メトロ東西線神楽坂」 徒歩3分
東京メトロ有楽町線江戸川橋」 徒歩9分
竣工 2003年12月 構造 鉄骨造
規模 地上3階, 地下0階 耐震基準 新耐震基準
床構造 - 空調設備 個別空調
天井高 - 基準階面積 --
コンセント容量 - 施工会社

最新の募集状況や類似物件については、
こちらにお問い合わせください。

天神町ビル 外観

外観

  • 天神町ビル エントランス写真

    エントランス

  • 2F

    2F

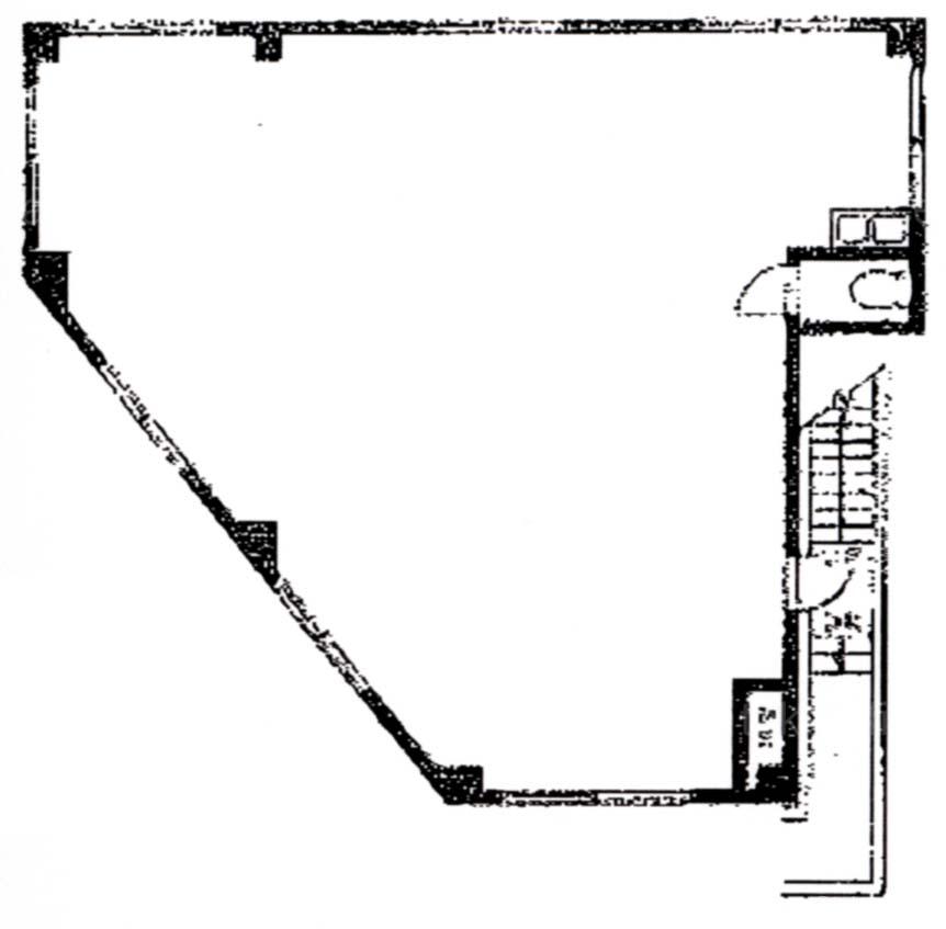
  • 1F

    1F

内見やお見積りなどの各種お問い合わせ

全物件
仲介手数料無料
仲介から
入居工事まで
ワンストップで対応
経験豊富なスタッフが
スピード感をもって
対応

周辺での似た条件の物件

非公開物件 多数あり!

お問い合わせフォーム