takeofficeなら掲載物件の仲介手数料は無料です

湯島ファーストビル(旧:イトーピア湯島ビル)

住所 東京都文京区湯島3-19-11
交通 東京メトロ千代田線湯島」 徒歩4分
東京メトロ銀座線末広町」 徒歩6分
東京メトロ銀座線上野広小路」 徒歩7分
竣工 1989年02月 構造 SRC
規模 地上8階, 地下1階 耐震基準 新耐震基準
床構造 フリーアクセス 50mm 空調設備 個別空調
天井高 2540mm 基準階面積 205.12坪(678.08m2)
コンセント容量 85VA/m2 施工会社

最新の募集状況や類似物件については、
こちらにお問い合わせください。

湯島ファーストビル(旧:イトーピア湯島ビル) 外観

外観

  • 湯島ファーストビル(旧:イトーピア湯島ビル) エントランス写真

    エントランス

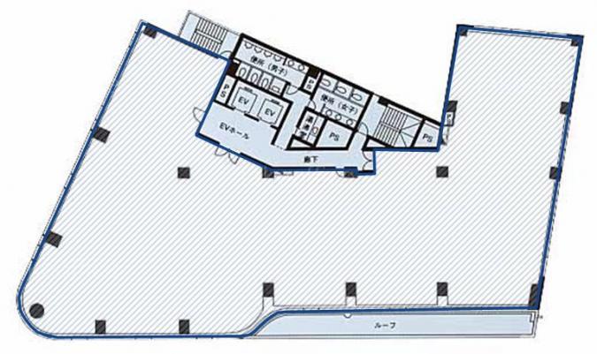
  • 4F

    4F

  • 3F

    3F

  • 6F

    6F

  • 7F

    7F

  • 8F

    8F

建物パンフレット

建物パンフレットは作成時点のものであり、また計画段階のものも含まれる為、実際とは異なる場合がございます。

内見やお見積りなどの各種お問い合わせ

全物件
仲介手数料無料
仲介から
入居工事まで
ワンストップで対応
経験豊富なスタッフが
スピード感をもって
対応

周辺での似た条件の物件

非公開物件 多数あり!

お問い合わせフォーム