takeofficeなら掲載物件の仲介手数料は無料です

Gate Cross HONGO

住所 東京都文京区湯島4-1-18
交通 東京メトロ丸ノ内線本郷三丁目」 徒歩4分
東京メトロ千代田線湯島」 徒歩8分
竣工 2025年10月 構造 鉄骨造+SRC
規模 地上9階, 地下2階 耐震基準 新耐震基準
床構造 フリーアクセス 100mm 空調設備 個別空調
天井高 2800mm 基準階面積 126.94坪(419.64m2)
コンセント容量 - 施工会社 竹中工務店
坪面積 用途 賃料 坪単価 共益費 入居可能日
5 126.94坪 事務所 相談 相談 相談 2026年12月下旬
2 19.29坪 事務所 相談 相談 相談 2026年12月下旬
Gate Cross HONGO 外観

外観

  • Gate Cross HONGO エントランス写真

    エントランス

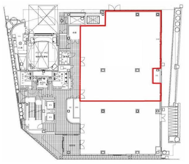
  • 基準階(4~6F)

    基準階(4~6F)

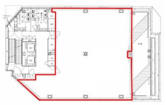
  • 1F

    1F

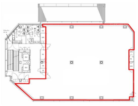
  • 2F

    2F

  • 7F

    7F

  • 8F

    8F

  • 9F

    9F

内見やお見積りなどの各種お問い合わせ

全物件
仲介手数料無料
仲介から
入居工事まで
ワンストップで対応
経験豊富なスタッフが
スピード感をもって
対応

※「ご相談」と記載されている項目について
賃貸人が募集賃料条件を守秘義務の関係から明示していない場合に、【ご相談】と記載しております。
フリーレント(賃料免除)期間、使用面積、入居時期、テナント様の与信などによりご提示できる条件が若干変化いたします。
お手数ですが、詳細につきましては、上記よりお問い合わせください。

非公開物件 多数あり!

お問い合わせフォーム