takeofficeなら掲載物件の仲介手数料は無料です

ツナシマ第2アネックスビル

住所 東京都文京区湯島3-20-12
交通 東京メトロ千代田線湯島」 徒歩3分
JR山手線御徒町」 徒歩8分
東京メトロ銀座線上野広小路」 徒歩7分
竣工 1991年 構造 SRC
規模 地上9階 耐震基準 新耐震基準
床構造 フリーアクセス 40mm 空調設備 個別空調
天井高 2600mm 基準階面積 163坪(541m2)
コンセント容量 - 施工会社

最新の募集状況や類似物件については、
こちらにお問い合わせください。

ツナシマ第2アネックスビル 外観

外観

  • NOW PRINTING

    エントランス

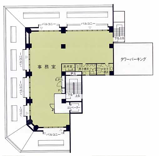
  • 基準階(2~4F)

    基準階(2~4F)

  • 5F

    5F

  • 6F

    6F

  • 7F

    7F

内見やお見積りなどの各種お問い合わせ

全物件
仲介手数料無料
仲介から
入居工事まで
ワンストップで対応
経験豊富なスタッフが
スピード感をもって
対応

周辺での似た条件の物件

非公開物件 多数あり!

お問い合わせフォーム