takeofficeなら掲載物件の仲介手数料は無料です

第1三倉ビル

住所 東京都文京区湯島3-21-4
交通 東京メトロ千代田線湯島」 徒歩3分
東京メトロ銀座線上野広小路」 徒歩7分
東京メトロ銀座線末広町」 徒歩7分
竣工 1992年05月 構造 SRC
規模 地上7階, 地下2階 耐震基準 新耐震基準
床構造 フリーアクセス 空調設備 個別空調
天井高 2500mm 基準階面積 68.2坪(225.45m2)
コンセント容量 - 施工会社

最新の募集状況や類似物件については、
こちらにお問い合わせください。

第1三倉ビル 外観

外観

  • 第1三倉ビル エントランス写真

    エントランス

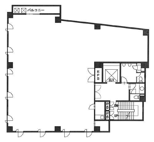
  • 基準階(2~5F)

    基準階(2~5F)

内見やお見積りなどの各種お問い合わせ

全物件
仲介手数料無料
仲介から
入居工事まで
ワンストップで対応
経験豊富なスタッフが
スピード感をもって
対応

周辺での似た条件の物件

非公開物件 多数あり!

お問い合わせフォーム