takeofficeなら掲載物件の仲介手数料は無料です

センチュリータワー

住所 東京都文京区本郷2-2-9
交通 JR総武本線水道橋」 徒歩5分
JR中央線御茶ノ水」 徒歩5分
東京メトロ丸ノ内線本郷三丁目」 徒歩7分
竣工 1991年05月 構造 鉄骨造
規模 地上21階, 地下3階 耐震基準 新耐震基準
床構造 フリーアクセス 100mm 空調設備 フロア別空調
天井高 2970mm 基準階面積 242.39坪(801.29m2)
コンセント容量 50VA/m2 施工会社

最新の募集状況や類似物件については、
こちらにお問い合わせください。

センチュリータワー 外観

外観

  • センチュリータワー エントランス写真

    エントランス

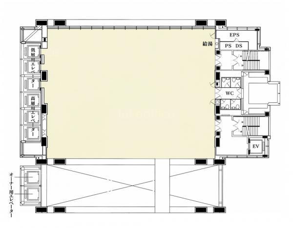
  • 奇数階

    奇数階

  • 1F

    1F

  • 偶数階

    偶数階

  • 18F

    18F

  • 19F

    19F

建物パンフレット

建物パンフレットは作成時点のものであり、また計画段階のものも含まれる為、実際とは異なる場合がございます。

内見やお見積りなどの各種お問い合わせ

全物件
仲介手数料無料
仲介から
入居工事まで
ワンストップで対応
経験豊富なスタッフが
スピード感をもって
対応

周辺での似た条件の物件

非公開物件 多数あり!

お問い合わせフォーム