takeofficeなら掲載物件の仲介手数料は無料です

お茶の水元町ビル

住所 東京都文京区本郷2-3-7
交通 都営三田線水道橋」 徒歩5分
東京メトロ丸ノ内線御茶ノ水」 徒歩8分
東京メトロ丸ノ内線本郷三丁目」 徒歩9分
竣工 1992年05月 構造 SRC
規模 地上6階, 地下1階 耐震基準 新耐震基準
床構造 フリーアクセス 空調設備 個別空調
天井高 2700mm 基準階面積 132.57坪(438.25m2)
コンセント容量 - 施工会社

最新の募集状況や類似物件については、
こちらにお問い合わせください。

お茶の水元町ビル 外観

外観

  • お茶の水元町ビル エントランス写真

    エントランス

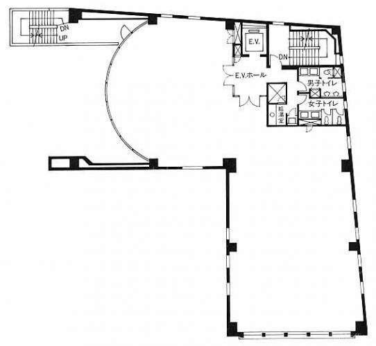
  • 基準階(3~5F)

    基準階(3~5F)

  • 1F

    1F

  • 2F

    2F

内見やお見積りなどの各種お問い合わせ

全物件
仲介手数料無料
仲介から
入居工事まで
ワンストップで対応
経験豊富なスタッフが
スピード感をもって
対応

周辺での似た条件の物件

非公開物件 多数あり!

お問い合わせフォーム