takeofficeなら掲載物件の仲介手数料は無料です

本郷二村ビル

住所 東京都文京区本郷3-15-2
交通 東京メトロ丸ノ内線本郷三丁目」 徒歩3分
JR総武本線御茶ノ水」 徒歩7分
JR総武本線水道橋」 徒歩8分
竣工 1974年03月 構造 SRC
規模 地上8階, 地下2階 耐震基準 旧耐震基準
床構造 フリーアクセス 空調設備 個別空調
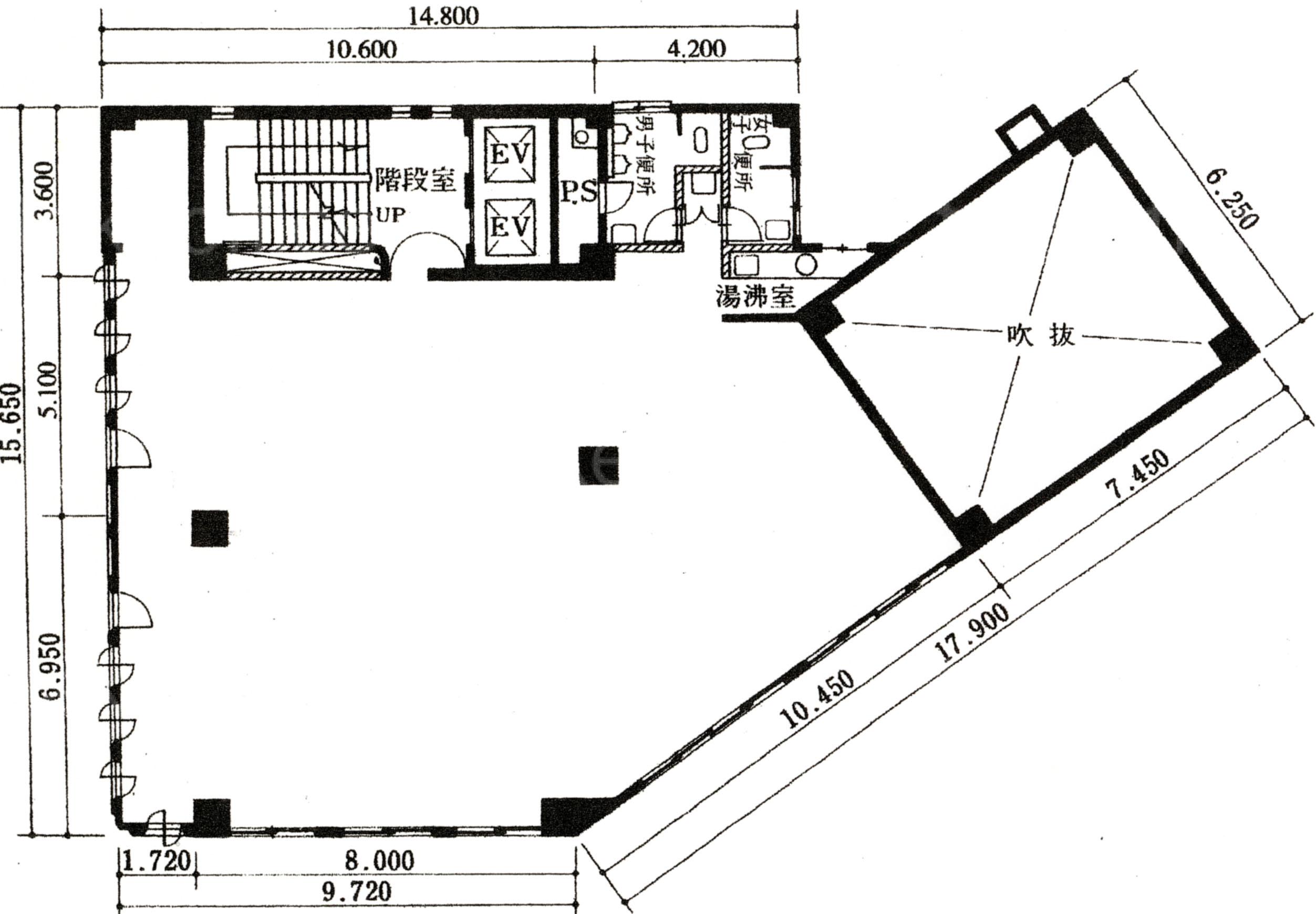
天井高 2350mm 基準階面積 71坪(234m2)
コンセント容量 - 施工会社

最新の募集状況や類似物件については、
こちらにお問い合わせください。

本郷二村ビル 外観

外観

  • NOW PRINTING

    エントランス

  • 4F

    4F

内見やお見積りなどの各種お問い合わせ

全物件
仲介手数料無料
仲介から
入居工事まで
ワンストップで対応
経験豊富なスタッフが
スピード感をもって
対応

周辺での似た条件の物件

非公開物件 多数あり!

お問い合わせフォーム