takeofficeなら掲載物件の仲介手数料は無料です

三翔ビル本郷

住所 東京都文京区本郷3-40-10
交通 東京メトロ丸ノ内線本郷三丁目」 徒歩4分
東京メトロ千代田線湯島」 徒歩8分
JR中央線御茶ノ水」 徒歩12分
竣工 1989年08月 構造 SRC
規模 地上8階, 地下1階 耐震基準 新耐震基準
床構造 フリーアクセス 空調設備 個別空調
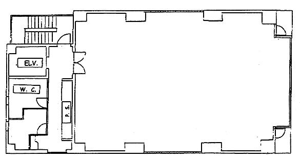
天井高 - 基準階面積 53.76坪(177.72m2)
コンセント容量 - 施工会社

最新の募集状況や類似物件については、
こちらにお問い合わせください。

三翔ビル本郷 外観

外観

  • 三翔ビル本郷 エントランス写真

    エントランス

  • 基準階(4~8F)

    基準階(4~8F)

内見やお見積りなどの各種お問い合わせ

全物件
仲介手数料無料
仲介から
入居工事まで
ワンストップで対応
経験豊富なスタッフが
スピード感をもって
対応

周辺での似た条件の物件

非公開物件 多数あり!

お問い合わせフォーム