takeofficeなら掲載物件の仲介手数料は無料です

お茶の水サニービル

住所 東京都文京区本郷3-2-7
交通 東京メトロ丸ノ内線御茶ノ水」 徒歩4分
JR中央線御茶ノ水」 徒歩5分
都営大江戸線本郷三丁目」 徒歩5分
竣工 1991年12月 構造 鉄骨造
規模 地上9階 耐震基準 新耐震基準
床構造 - 空調設備 個別空調
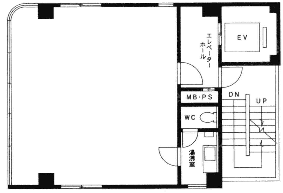
天井高 2450mm 基準階面積 18.93坪(62.58m2)
コンセント容量 - 施工会社

最新の募集状況や類似物件については、
こちらにお問い合わせください。

お茶の水サニービル 外観

外観

  • お茶の水サニービル エントランス写真

    エントランス

  • 基準階

    基準階

内見やお見積りなどの各種お問い合わせ

全物件
仲介手数料無料
仲介から
入居工事まで
ワンストップで対応
経験豊富なスタッフが
スピード感をもって
対応

※「ご相談」と記載されている項目について
賃貸人が募集賃料条件を守秘義務の関係から明示していない場合に、【ご相談】と記載しております。
フリーレント(賃料免除)期間、使用面積、入居時期、テナント様の与信などによりご提示できる条件が若干変化いたします。
お手数ですが、詳細につきましては、上記よりお問い合わせください。

周辺での似た条件の物件

非公開物件 多数あり!

お問い合わせフォーム