takeofficeなら掲載物件の仲介手数料は無料です

東京ビル

住所 東京都文京区本郷3-32-7
交通 東京メトロ丸ノ内線本郷三丁目」 徒歩4分
JR総武本線水道橋」 徒歩9分
都営三田線水道橋」 徒歩9分
竣工 1994年12月 構造 SRC
規模 地上8階 耐震基準 新耐震基準
床構造 フリーアクセス 空調設備 個別空調
天井高 2680mm 基準階面積 59.48坪(196.63m2)
コンセント容量 - 施工会社

最新の募集状況や類似物件については、
こちらにお問い合わせください。

東京ビル 外観

外観

  • 東京ビル エントランス写真

    エントランス

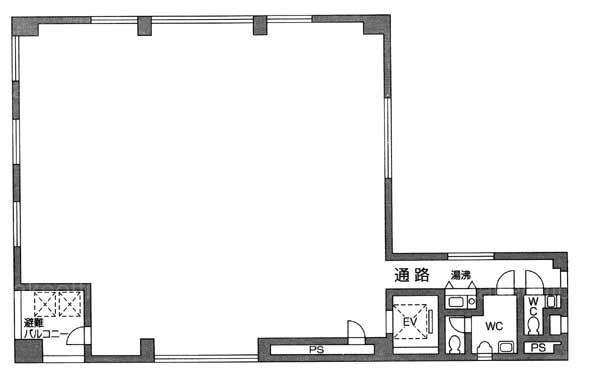
  • 基準階(4F)

    基準階(4F)

内見やお見積りなどの各種お問い合わせ

全物件
仲介手数料無料
仲介から
入居工事まで
ワンストップで対応
経験豊富なスタッフが
スピード感をもって
対応

周辺での似た条件の物件

非公開物件 多数あり!

お問い合わせフォーム