takeofficeなら掲載物件の仲介手数料は無料です

NREG本郷3丁目ビル

住所 東京都文京区本郷3-26-6
交通 東京メトロ丸ノ内線本郷三丁目」 徒歩4分
JR中央線御茶ノ水」 徒歩10分
竣工 2011年03月 構造 RC
規模 地上8階 耐震基準 新耐震基準
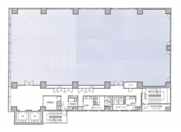
床構造 フリーアクセス 100mm 空調設備 個別空調
天井高 2700mm 基準階面積 132.21坪(437.06m2)
コンセント容量 80VA/m2 施工会社

最新の募集状況や類似物件については、
こちらにお問い合わせください。

NREG本郷3丁目ビル 外観

外観

内見やお見積りなどの各種お問い合わせ

全物件
仲介手数料無料
仲介から
入居工事まで
ワンストップで対応
経験豊富なスタッフが
スピード感をもって
対応

周辺での似た条件の物件

非公開物件 多数あり!

お問い合わせフォーム