takeofficeなら掲載物件の仲介手数料は無料です

日本生命小石川ビル

住所 東京都文京区小石川1-12-14
交通 都営大江戸線春日」 徒歩3分
東京メトロ南北線後楽園」 徒歩6分
東京メトロ南北線東大前」 徒歩10分
竣工 1986年 月 構造 SRC
規模 地上9階, 地下1階 耐震基準 新耐震基準
床構造 フリーアクセス 空調設備 個別空調
天井高 2515mm 基準階面積 196.32坪(648.99m2)
コンセント容量 - 施工会社

最新の募集状況や類似物件については、
こちらにお問い合わせください。

日本生命小石川ビル 外観

外観

  • 日本生命小石川ビル エントランス写真

    エントランス

  • 基準階

    基準階

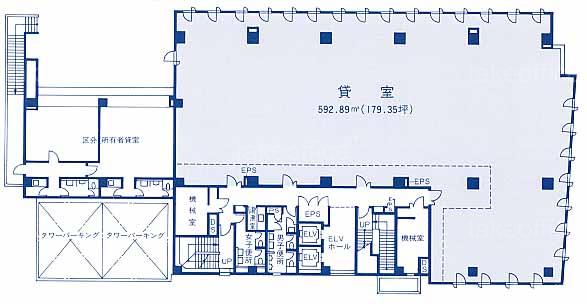
  • 1F

    1F

  • 2F

    2F

内見やお見積りなどの各種お問い合わせ

全物件
仲介手数料無料
仲介から
入居工事まで
ワンストップで対応
経験豊富なスタッフが
スピード感をもって
対応

周辺での似た条件の物件

非公開物件 多数あり!

お問い合わせフォーム