takeofficeなら掲載物件の仲介手数料は無料です

小石川5丁目ビル

住所 東京都文京区小石川5-12-2
交通 東京メトロ丸ノ内線茗荷谷」 徒歩5分
竣工 1990年12月 構造 -
規模 地上3階 耐震基準 -
床構造 - 空調設備 -
天井高 - 基準階面積 67.34坪(222.61m2)
コンセント容量 - 施工会社

最新の募集状況や類似物件については、
こちらにお問い合わせください。

NOW PRINTING

外観

  • NOW PRINTING

    エントランス

  • 基準階(2~3F)

    基準階(2~3F)

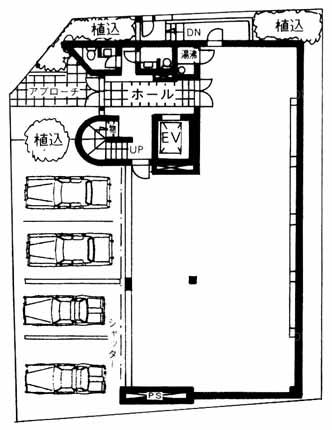
  • 1F

    1F

内見やお見積りなどの各種お問い合わせ

全物件
仲介手数料無料
仲介から
入居工事まで
ワンストップで対応
経験豊富なスタッフが
スピード感をもって
対応

周辺での似た条件の物件

非公開物件 多数あり!

お問い合わせフォーム