takeofficeなら掲載物件の仲介手数料は無料です

TKセントラル

住所 東京都文京区後楽1-1-1
交通 JR総武本線水道橋」 徒歩1分
都営三田線水道橋」 徒歩3分
東京メトロ丸ノ内線後楽園」 徒歩7分
竣工 1992年12月 構造 SRC+鉄骨造
規模 地上8階 耐震基準 新耐震基準
床構造 フリーアクセス 空調設備 個別空調
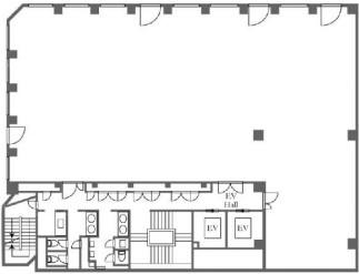
天井高 2600mm 基準階面積 84.55坪(279.5m2)
コンセント容量 - 施工会社

最新の募集状況や類似物件については、
こちらにお問い合わせください。

TKセントラル 外観

外観

  • TKセントラル エントランス写真

    エントランス

内見やお見積りなどの各種お問い合わせ

全物件
仲介手数料無料
仲介から
入居工事まで
ワンストップで対応
経験豊富なスタッフが
スピード感をもって
対応

周辺での似た条件の物件

非公開物件 多数あり!

お問い合わせフォーム