takeofficeなら掲載物件の仲介手数料は無料です

KIS飯田橋

住所 東京都文京区後楽2-3-28
交通 都営大江戸線飯田橋」 徒歩2分
JR総武本線飯田橋」 徒歩4分
竣工 2002年11月 構造 SRC
規模 地上8階, 地下1階 耐震基準 新耐震基準
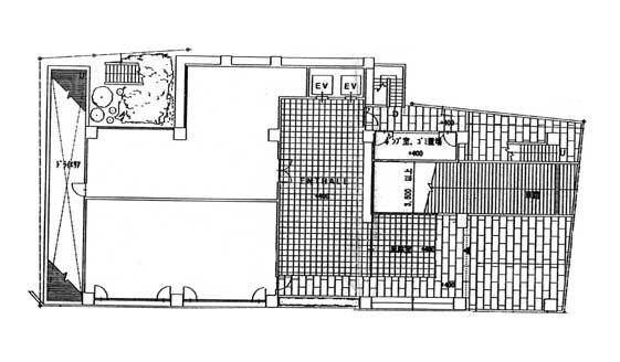
床構造 フリーアクセス 100mm 空調設備 個別空調
天井高 2620mm 基準階面積 122.12坪(403.7m2)
コンセント容量 50VA/m2 施工会社 安藤建設

最新の募集状況や類似物件については、
こちらにお問い合わせください。

KIS飯田橋 外観

外観

建物パンフレット

建物パンフレットは作成時点のものであり、また計画段階のものも含まれる為、実際とは異なる場合がございます。

内見やお見積りなどの各種お問い合わせ

全物件
仲介手数料無料
仲介から
入居工事まで
ワンストップで対応
経験豊富なスタッフが
スピード感をもって
対応

周辺での似た条件の物件

非公開物件 多数あり!

お問い合わせフォーム