takeofficeなら掲載物件の仲介手数料は無料です

飯田橋尚学ビル別館

住所 東京都文京区後楽2-16-1
交通 都営大江戸線飯田橋」 徒歩4分
JR総武本線飯田橋」 徒歩4分
東京メトロ丸ノ内線後楽園」 徒歩10分
竣工 1974年12月 構造 RC
規模 地上5階, 地下1階 耐震基準 新耐震基準
床構造 フリーアクセス 100mm 空調設備 個別空調
天井高 2500mm 基準階面積 124.36坪(411.11m2)
コンセント容量 - 施工会社
坪面積 用途 賃料 坪単価 共益費 入居可能日
5 105.31坪 事務所 ¥884,604(税込 ¥973,064) ¥8,400(税込 ¥9,240) ¥273,806(税込 ¥301,186) 2026年2月初旬
3 124.36坪 事務所 ¥1,044,624(税込 ¥1,149,086) ¥8,400(税込 ¥9,240) ¥323,336(税込 ¥355,669)
飯田橋尚学ビル別館 外観

外観

  • 飯田橋尚学ビル別館 エントランス写真

    エントランス

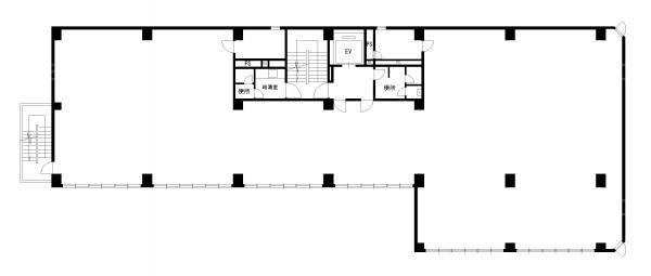
  • 基準階

    基準階

  • 1F

    1F

  • 4F

    4F

  • 5F

    5F

内見やお見積りなどの各種お問い合わせ

全物件
仲介手数料無料
仲介から
入居工事まで
ワンストップで対応
経験豊富なスタッフが
スピード感をもって
対応

※「ご相談」と記載されている項目について
賃貸人が募集賃料条件を守秘義務の関係から明示していない場合に、【ご相談】と記載しております。
フリーレント(賃料免除)期間、使用面積、入居時期、テナント様の与信などによりご提示できる条件が若干変化いたします。
お手数ですが、詳細につきましては、上記よりお問い合わせください。

周辺での似た条件の物件

非公開物件 多数あり!

お問い合わせフォーム