takeofficeなら掲載物件の仲介手数料は無料です

STAR PLAZA

住所 東京都文京区後楽2-20-15
交通 JR総武本線飯田橋」 徒歩6分
都営大江戸線飯田橋」 徒歩6分
東京メトロ丸ノ内線後楽園」 徒歩8分
竣工 1988年09月 構造 SRC
規模 地上6階, 地下1階 耐震基準 新耐震基準
床構造 - 空調設備 個別空調
天井高 - 基準階面積 110.79坪(366.25m2)
コンセント容量 - 施工会社

最新の募集状況や類似物件については、
こちらにお問い合わせください。

STAR PLAZA 外観

外観

  • STAR PLAZA エントランス写真

    エントランス

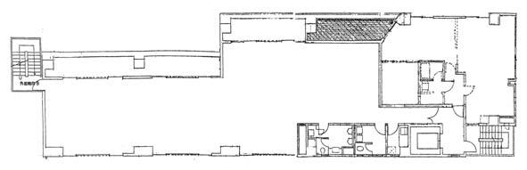
  • 基準階

    基準階

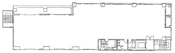
  • 4F

    4F

内見やお見積りなどの各種お問い合わせ

全物件
仲介手数料無料
仲介から
入居工事まで
ワンストップで対応
経験豊富なスタッフが
スピード感をもって
対応

周辺での似た条件の物件

非公開物件 多数あり!

お問い合わせフォーム