takeofficeなら掲載物件の仲介手数料は無料です

第2名川ビル

住所 東京都文京区後楽2-2-18
交通 JR総武本線飯田橋」 徒歩4分
東京メトロ有楽町線飯田橋」 徒歩4分
竣工 2003年09月 構造 RC
規模 地上4階 耐震基準 -
床構造 フリーアクセス 空調設備 個別空調
天井高 - 基準階面積 --
コンセント容量 - 施工会社

最新の募集状況や類似物件については、
こちらにお問い合わせください。

第2名川ビル 外観

外観

  • 第2名川ビル エントランス写真

    エントランス

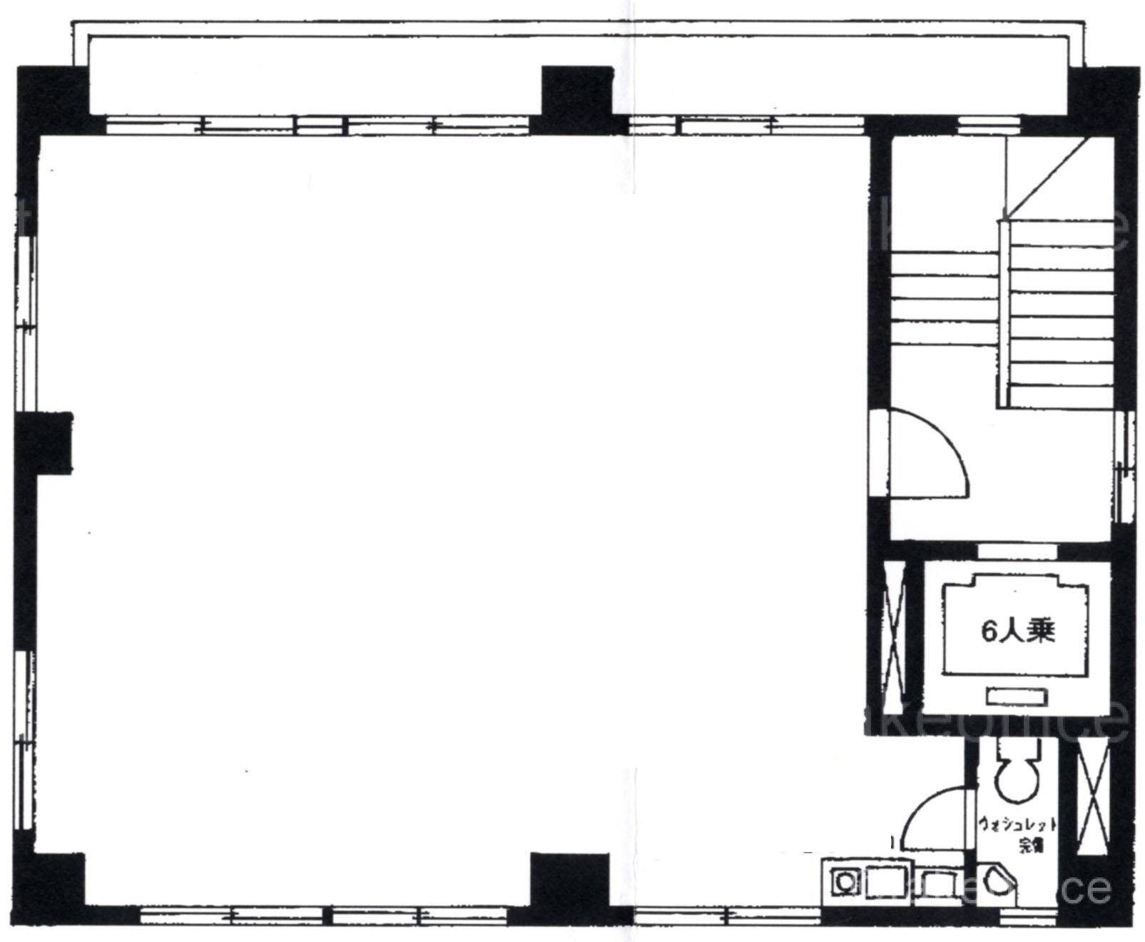
  • 3F

    3F

内見やお見積りなどの各種お問い合わせ

全物件
仲介手数料無料
仲介から
入居工事まで
ワンストップで対応
経験豊富なスタッフが
スピード感をもって
対応

周辺での似た条件の物件

非公開物件 多数あり!

お問い合わせフォーム