takeofficeなら掲載物件の仲介手数料は無料です

大樹生命文京小日向ビル

住所 東京都文京区小日向4-2-8
交通 東京メトロ丸ノ内線茗荷谷」 徒歩6分
竣工 1992年07月 構造 SRC
規模 地上8階, 地下1階 耐震基準 新耐震基準
床構造 フリーアクセス 空調設備 個別空調
天井高 2450mm 基準階面積 178.34坪(589.55m2)
コンセント容量 - 施工会社

最新の募集状況や類似物件については、
こちらにお問い合わせください。

大樹生命文京小日向ビル 外観

外観

  • 大樹生命文京小日向ビル エントランス写真

    エントランス

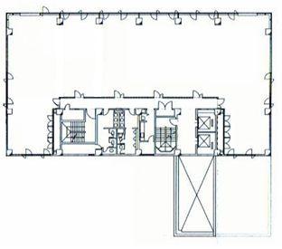
  • 基準階

    基準階

建物パンフレット

建物パンフレットは作成時点のものであり、また計画段階のものも含まれる為、実際とは異なる場合がございます。

内見やお見積りなどの各種お問い合わせ

全物件
仲介手数料無料
仲介から
入居工事まで
ワンストップで対応
経験豊富なスタッフが
スピード感をもって
対応

周辺での似た条件の物件

非公開物件 多数あり!

お問い合わせフォーム