takeofficeなら掲載物件の仲介手数料は無料です

住友成泉小石川別館

住所 東京都文京区大塚3-5-9
交通 東京メトロ丸ノ内線茗荷谷」 徒歩4分
竣工 1989年07月 構造 SRC
規模 地上8階 耐震基準 新耐震基準
床構造 フリーアクセス 50mm 空調設備 個別空調
天井高 2550mm 基準階面積 50坪(165.29m2)
コンセント容量 - 施工会社

最新の募集状況や類似物件については、
こちらにお問い合わせください。

NOW PRINTING

外観

  • NOW PRINTING

    エントランス

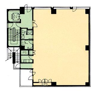
  • 基準階(2~7F)

    基準階(2~7F)

  • 8F

    8F

内見やお見積りなどの各種お問い合わせ

全物件
仲介手数料無料
仲介から
入居工事まで
ワンストップで対応
経験豊富なスタッフが
スピード感をもって
対応

周辺での似た条件の物件

非公開物件 多数あり!

お問い合わせフォーム