takeofficeなら掲載物件の仲介手数料は無料です

柳橋鈴和ビル

住所 東京都台東区柳橋2-2-3
交通 JR総武本線浅草橋」 徒歩2分
都営大江戸線蔵前」 徒歩9分
JR総武本線両国」 徒歩13分
竣工 1992年08月 構造 SRC
規模 地上8階 耐震基準 新耐震基準
床構造 フリーアクセス 空調設備 個別空調
天井高 - 基準階面積 68.47坪(226.35m2)
コンセント容量 - 施工会社

最新の募集状況や類似物件については、
こちらにお問い合わせください。

柳橋鈴和ビル 外観

外観

  • NOW PRINTING

    エントランス

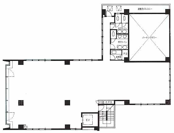
  • 基準階(2~7F)

    基準階(2~7F)

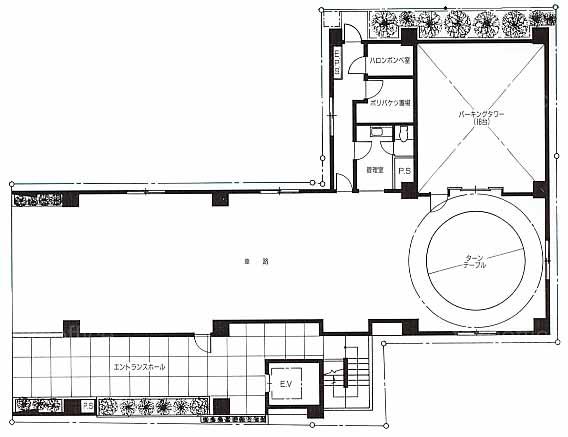
  • 1F

    1F

内見やお見積りなどの各種お問い合わせ

全物件
仲介手数料無料
仲介から
入居工事まで
ワンストップで対応
経験豊富なスタッフが
スピード感をもって
対応

周辺での似た条件の物件

非公開物件 多数あり!

お問い合わせフォーム