takeofficeなら掲載物件の仲介手数料は無料です

モリタビル浅草橋

住所 東京都台東区浅草橋3-32-5
交通 都営浅草線蔵前」 徒歩5分
JR総武本線浅草橋」 徒歩8分
竣工 1986年06月 構造 鉄骨造
規模 地上7階 耐震基準 新耐震基準
床構造 - 空調設備 個別空調
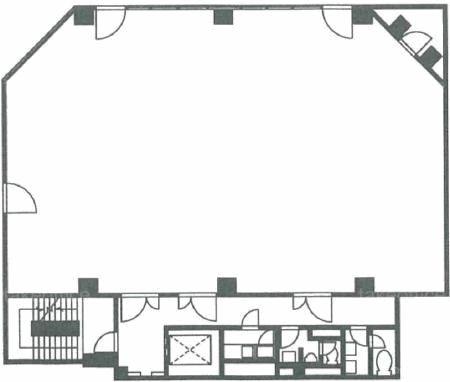
天井高 - 基準階面積 64坪(211.57m2)
コンセント容量 - 施工会社

最新の募集状況や類似物件については、
こちらにお問い合わせください。

モリタビル浅草橋 外観

外観

  • NOW PRINTING

    エントランス

内見やお見積りなどの各種お問い合わせ

全物件
仲介手数料無料
仲介から
入居工事まで
ワンストップで対応
経験豊富なスタッフが
スピード感をもって
対応

周辺での似た条件の物件

非公開物件 多数あり!

お問い合わせフォーム