takeofficeなら掲載物件の仲介手数料は無料です

エムプレイス東上野ビル

住所 東京都台東区東上野3-15-12
交通 JR山手線上野」 徒歩2分
東京メトロ銀座線上野」 徒歩2分
大井町線上野毛」 徒歩2分
竣工 1986年11月 構造 SRC
規模 地上10階 耐震基準 新耐震基準
床構造 - 空調設備 個別空調
天井高 - 基準階面積 55.99坪(185.09m2)
コンセント容量 - 施工会社

最新の募集状況や類似物件については、
こちらにお問い合わせください。

エムプレイス東上野ビル 外観

外観

  • エムプレイス東上野ビル エントランス写真

    エントランス

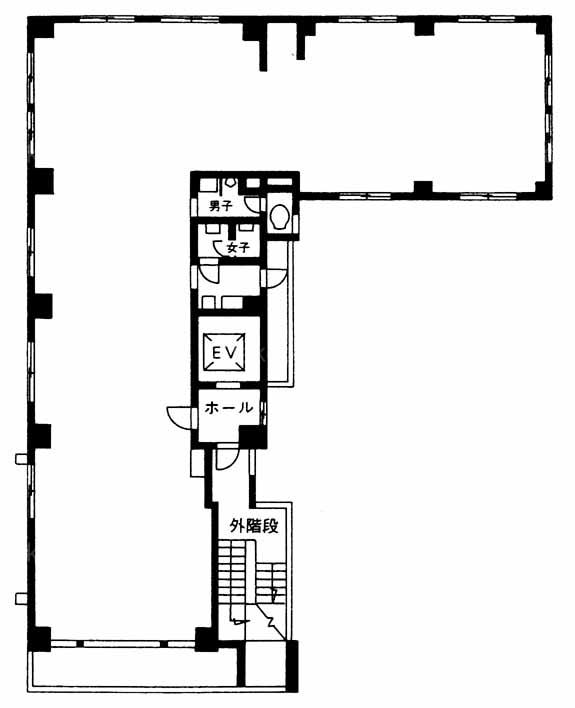
  • 基準階(8~10F)

    基準階(8~10F)

  • 6F

    6F

内見やお見積りなどの各種お問い合わせ

全物件
仲介手数料無料
仲介から
入居工事まで
ワンストップで対応
経験豊富なスタッフが
スピード感をもって
対応

周辺での似た条件の物件

非公開物件 多数あり!

お問い合わせフォーム