takeofficeなら掲載物件の仲介手数料は無料です

三木ビル

住所 東京都台東区北上野1-8-3
交通 東京メトロ日比谷線入谷」 徒歩5分
JR山手線上野」 徒歩7分
東京メトロ銀座線稲荷町」 徒歩9分
竣工 1989年09月 構造 SRC
規模 地上9階 耐震基準 新耐震基準
床構造 - 空調設備 個別空調
天井高 - 基準階面積 51.9坪(171.57m2)
コンセント容量 - 施工会社

最新の募集状況や類似物件については、
こちらにお問い合わせください。

三木ビル 外観

外観

  • 三木ビル エントランス写真

    エントランス

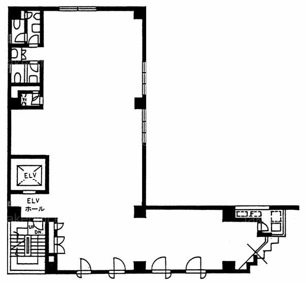
  • 基準階(2~4F)

    基準階(2~4F)

内見やお見積りなどの各種お問い合わせ

全物件
仲介手数料無料
仲介から
入居工事まで
ワンストップで対応
経験豊富なスタッフが
スピード感をもって
対応

周辺での似た条件の物件

非公開物件 多数あり!

お問い合わせフォーム