takeofficeなら掲載物件の仲介手数料は無料です

新御徒町KMビル

住所 東京都台東区東上野1-28-12
交通 都営大江戸線新御徒町」 徒歩2分
東京メトロ銀座線稲荷町」 徒歩5分
JR山手線上野」 徒歩8分
竣工 1985年11月 構造 SRC
規模 地上9階, 地下0階 耐震基準 新耐震基準
床構造 フリーアクセス 50mm 空調設備 個別空調
天井高 2500mm 基準階面積 99.73坪(329.69m2)
コンセント容量 - 施工会社

最新の募集状況や類似物件については、
こちらにお問い合わせください。

新御徒町KMビル 外観

外観

  • NOW PRINTING

    エントランス

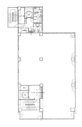
  • 基準階(5~7F)

    基準階(5~7F)

内見やお見積りなどの各種お問い合わせ

全物件
仲介手数料無料
仲介から
入居工事まで
ワンストップで対応
経験豊富なスタッフが
スピード感をもって
対応

周辺での似た条件の物件

非公開物件 多数あり!

お問い合わせフォーム