takeofficeなら掲載物件の仲介手数料は無料です

東京ミシン会館

住所 東京都台東区台東1-21-4
交通 JR山手線秋葉原」 徒歩8分
東京メトロ日比谷線秋葉原」 徒歩8分
TX秋葉原」 徒歩8分
竣工 1991年07月 構造 SRC
規模 地上8階 耐震基準 新耐震基準
床構造 - 空調設備 個別空調
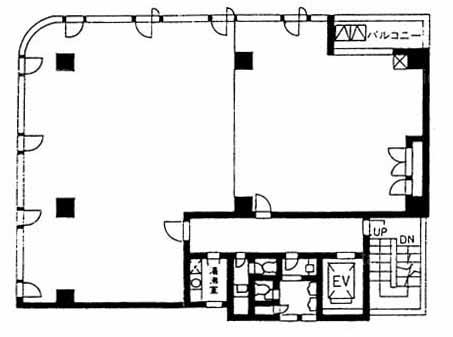
天井高 - 基準階面積 59.4坪(196.36m2)
コンセント容量 - 施工会社

最新の募集状況や類似物件については、
こちらにお問い合わせください。

東京ミシン会館 外観

外観

  • 東京ミシン会館 エントランス写真

    エントランス

  • 5F

    5F

  • 6F

    6F

  • 8F

    8F

内見やお見積りなどの各種お問い合わせ

全物件
仲介手数料無料
仲介から
入居工事まで
ワンストップで対応
経験豊富なスタッフが
スピード感をもって
対応

周辺での似た条件の物件

非公開物件 多数あり!

お問い合わせフォーム