takeofficeなら掲載物件の仲介手数料は無料です

KHビル

住所 東京都台東区台東2-3-9
交通 都営大江戸線新御徒町」 徒歩7分
東京メトロ日比谷線仲御徒町」 徒歩8分
竣工 1993年02月 構造 SRC+鉄骨造
規模 地上8階, 地下2階 耐震基準 新耐震基準
床構造 - 空調設備 個別空調
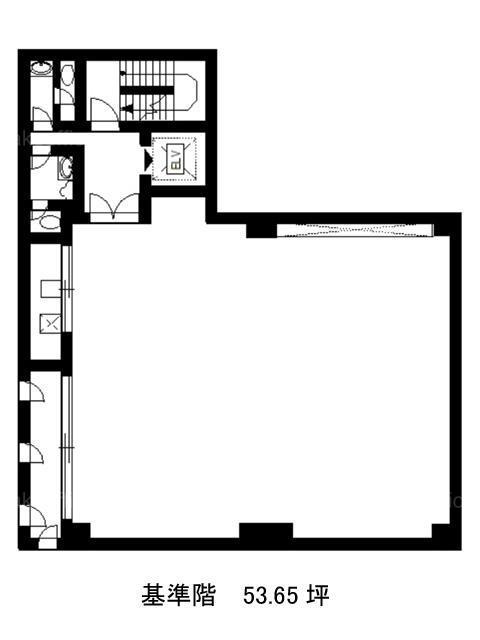
天井高 - 基準階面積 53.65坪(177.36m2)
コンセント容量 - 施工会社

最新の募集状況や類似物件については、
こちらにお問い合わせください。

KHビル 外観

外観

  • KHビル エントランス写真

    エントランス

内見やお見積りなどの各種お問い合わせ

全物件
仲介手数料無料
仲介から
入居工事まで
ワンストップで対応
経験豊富なスタッフが
スピード感をもって
対応

周辺での似た条件の物件

非公開物件 多数あり!

お問い合わせフォーム