takeofficeなら掲載物件の仲介手数料は無料です

クリエイティブOne秋葉原ビル(旧:植木ビル)

住所 東京都台東区上野5-3-4
交通 東京メトロ銀座線末広町」 徒歩4分
東京メトロ日比谷線仲御徒町」 徒歩4分
JR山手線秋葉原」 徒歩6分
竣工 1991年09月 構造 SRC
規模 地上9階, 地下1階 耐震基準 新耐震基準
床構造 - 空調設備 個別空調
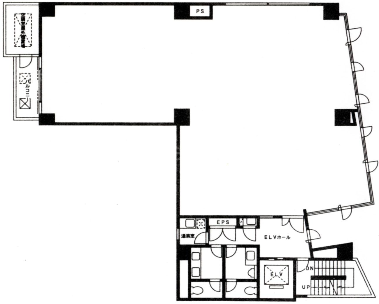
天井高 2440mm 基準階面積 65.68坪(217.12m2)
コンセント容量 - 施工会社

最新の募集状況や類似物件については、
こちらにお問い合わせください。

クリエイティブOne秋葉原ビル(旧:植木ビル) 外観

外観

  • クリエイティブOne秋葉原ビル(旧:植木ビル) エントランス写真

    エントランス

  • 基準階 3~7F

    基準階 3~7F

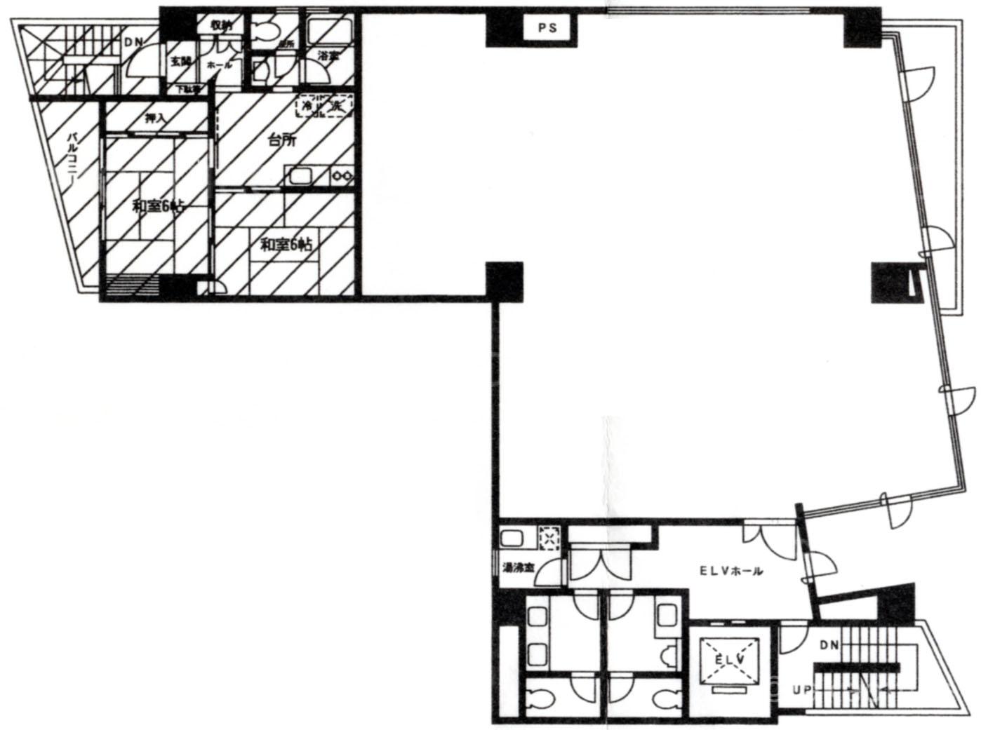
  • 2F

    2F

内見やお見積りなどの各種お問い合わせ

全物件
仲介手数料無料
仲介から
入居工事まで
ワンストップで対応
経験豊富なスタッフが
スピード感をもって
対応

周辺での似た条件の物件

非公開物件 多数あり!

お問い合わせフォーム