takeofficeなら掲載物件の仲介手数料は無料です

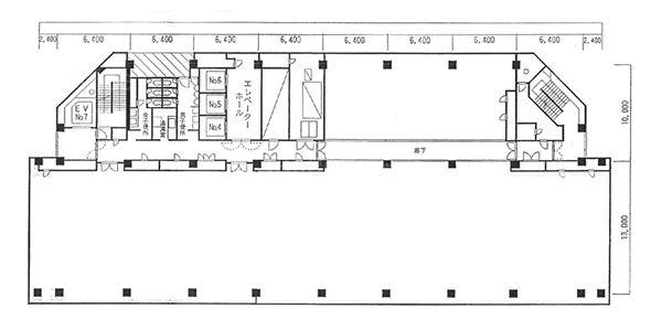
両国シティコア

住所 東京都墨田区両国2-10-14
交通 JR総武本線両国」 徒歩2分
都営大江戸線両国」 徒歩9分
都営浅草線浅草橋」 徒歩13分
竣工 1992年03月 構造 SRC+SRC
規模 地上18階, 地下2階 耐震基準 新耐震基準
床構造 フリーアクセス 70mm 空調設備 セントラル空調
天井高 2580mm 基準階面積 --
コンセント容量 40VA/m2 施工会社

最新の募集状況や類似物件については、
こちらにお問い合わせください。

両国シティコア 外観

外観

内見やお見積りなどの各種お問い合わせ

全物件
仲介手数料無料
仲介から
入居工事まで
ワンストップで対応
経験豊富なスタッフが
スピード感をもって
対応

周辺での似た条件の物件

非公開物件 多数あり!

お問い合わせフォーム