takeofficeなら掲載物件の仲介手数料は無料です

両国イーストビル

住所 東京都墨田区両国4-37-3
交通 JR総武本線両国」 徒歩1分
竣工 1991年11月 構造 RC
規模 地上7階 耐震基準 新耐震基準
床構造 - 空調設備 個別空調
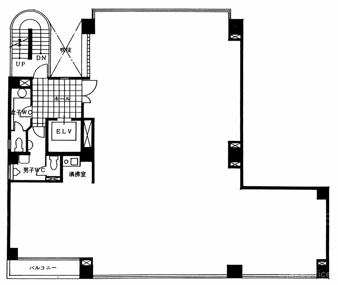
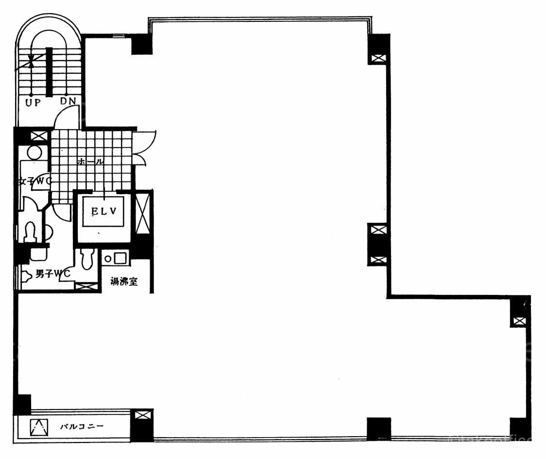
天井高 - 基準階面積 56.75坪(187.6m2)
コンセント容量 - 施工会社

最新の募集状況や類似物件については、
こちらにお問い合わせください。

両国イーストビル 外観

外観

  • 両国イーストビル エントランス写真

    エントランス

  • 3~6F

    3~6F

  • 2F

    2F

内見やお見積りなどの各種お問い合わせ

全物件
仲介手数料無料
仲介から
入居工事まで
ワンストップで対応
経験豊富なスタッフが
スピード感をもって
対応

周辺での似た条件の物件

非公開物件 多数あり!

お問い合わせフォーム