takeofficeなら掲載物件の仲介手数料は無料です

州ビル

住所 東京都墨田区緑1-22-5
交通 都営大江戸線両国」 徒歩3分
JR総武本線両国」 徒歩8分
竣工 1990年02月 構造 RC
規模 地上6階 耐震基準 新耐震基準
床構造 - 空調設備 個別空調
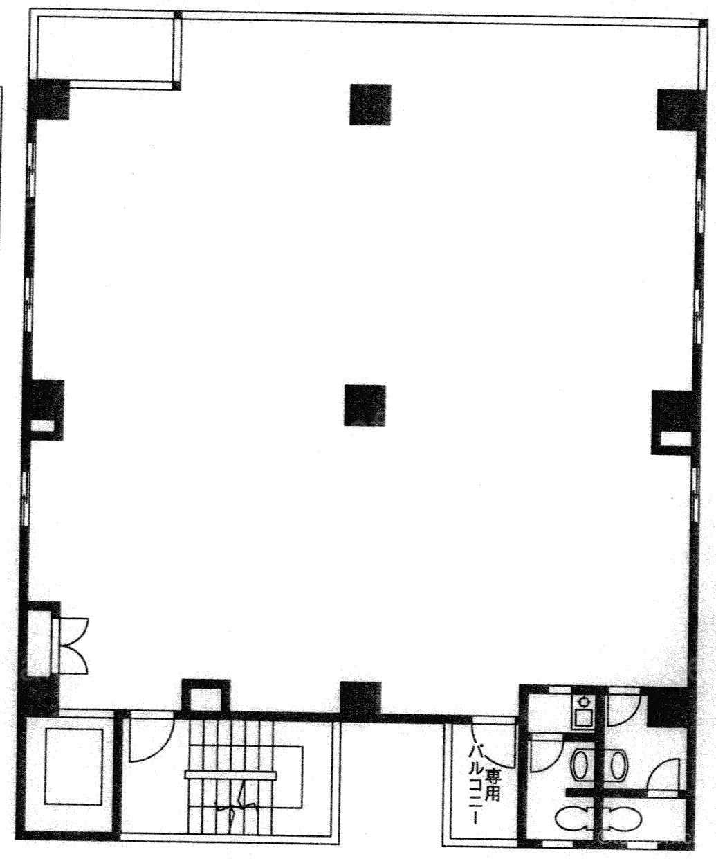
天井高 - 基準階面積 56.1坪(185.45m2)
コンセント容量 - 施工会社

最新の募集状況や類似物件については、
こちらにお問い合わせください。

州ビル 外観

外観

  • NOW PRINTING

    エントランス

  • 基準階

    基準階

内見やお見積りなどの各種お問い合わせ

全物件
仲介手数料無料
仲介から
入居工事まで
ワンストップで対応
経験豊富なスタッフが
スピード感をもって
対応

周辺での似た条件の物件

非公開物件 多数あり!

お問い合わせフォーム